
О проекте
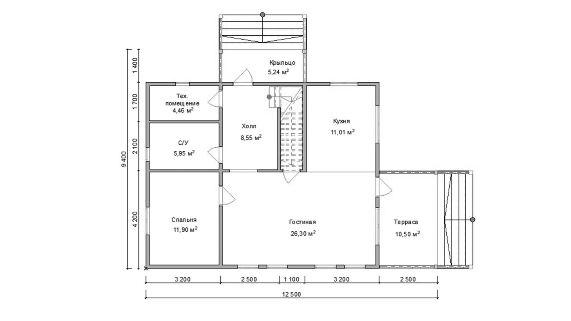
Проект интересного полутораэтажного дома, рассчитанного под строительство по каркасной технологии. Из-за просторной террасы размеры дома составляют 12,5×10,4 м, а доступная площадь помещений и дополнительных зон — 160 м2. Такого дома с лихвой хватит для постоянного проживания семье из 5-6 человек.
Согласно планировке по умолчанию, на первом этаже обустраивается угловая гостиная, объединённая с кухней. Есть отдельная комната под спальню или кабинет. Из функциональных помещений здесь предусмотрена котельная (бойлерная), санузел с ванной и холл с двухмаршевой лестницей. На улицу есть два выхода — из холла (на крыльцо) и гостиной (на террасу). На втором этаже просторный холл объединяет две большие спальни и отдельный санузел.
Снаружи дом примечателен несколькими деталями. Это и большая кукушка, добавляющая пространства и естественного освещения в холле на втором уровне. А также крыльцо и терраса, расположенные по разные стороны постройки. Крыша дома — выполнена по классике. Она прямая, двускатная.
Закажите сегодня - и строительство будет закончено за 3 месяца!Заказать
Комплектация. Качественные материалы в приоритете!
Комплектация и цены
| Фундамент | |
| Фундамент: | Фундамент в базовую комплектацию не входит и рассчитывается отдельно. На выбор заказчика: свайно-винтовой, ленточный, монолитная плита, фундамент на забивных железобетонных сваях. |
| Гидроизоляция основания: | «Технониколь» |
| Основание дома | |
| Обвязка основания: | Выполнена из нестроганого бруса сечением 100×150 мм (камерной сушки). |
| Нижняя платформа основания и лаги пола 1-го этажа: | На обвязку основания монтируется нижняя платформа дома из нестроганой доски 40×150 мм (камерной сушки). В неё устанавливаются лаги пола 40×150 мм (камерной сушки) с шагом 590 мм. Снизу прибивается доска 40×100 мм, затем укладывается черновой пол. |
| Черновой пол: | Нестроганая доска 20×100 мм (камерной сушки). |
| Антисептирование: | Нижняя обвязка, черновые полы и лаги пола обрабатываются составом «ХМ-11». |
| Цокольные отливы: | Установка металлических отливов по периметру фундамента. Цвет на выбор заказчика. |
| Силовой каркас первого и 1,5-го этажа | |
| Силовой каркас внешних стен 1-го этажа: | Выполняется из нестроганой доски 40×150 мм (камерной сушки), шаг стоек 590 мм. Укосины — доска 40×100 мм. Утепление не входит. Снаружи монтируется ветрозащитная мембрана «Ондутис А-100 Смарт», далее через контррейку (доска 20×50 мм) — обшивка имитацией бруса 18×140 мм. |
| Силовой каркас внутренних перегородок: | Из нестроганой доски 40×100 мм (камерной сушки), шаг 590 мм. Перегородки не утепляются. |
| Высота 1-го этажа: | От лаг пола до потолочных балок — 2,6 м (±5 см). |
| Каркас фронтонов полуторного этажа: | Из доски 40×150 мм (камерной сушки). Обшивается ветрозащитной мембраной «Ондутис А-100 Смарт», затем строганая доска 20×45 мм, сверху — имитация бруса 18×140 мм. |
| Полы и потолки первого этажа | |
| Полы 1-го этажа: | Отсутствуют |
| Потолочные балки 1-го этажа: | Нестроганая доска 40×150 мм (камерной сушки), шаг 590 мм. |
| Потолок 1-го этажа: | Отсутствует |
| Полуторный этаж | |
| Обвязка: | Нестроганая доска 40×150 мм (камерной сушки). |
| Лаги перекрытия: | Нестроганая доска 40×150 мм (камерной сушки), шаг 590 мм. |
| Полы полуторного этажа: | Из доски 20×100 мм, строганая, камерной сушки. |
| Силовой каркас стен: | Нестроганая доска 40×150 мм (камерной сушки), шаг 590 мм. Укосины — доска 40×100 мм. Каркас не утепляется. Снаружи — ветрозащитная мембрана «Ондутис А-100 Смарт», затем контррейка (доска 20×50 мм), далее — имитация бруса 18×140 мм. |
| Высота стен полуторного этажа: | 1,2 м. |
| Высота в коньке: | Согласно проекту: от 2,2 м до 2,8 м. |
| Фронтоны: | Из доски 40×150 мм, обшивка как на стенах. Вентиляционные решётки и люк (вент-дверь) 0,7×0,9 м. |
| Кровля | |
| Крыша: | Согласно проекту (двухскатная, ломаная, асимметричная). Высота конька 1,7 м / 2,5 м / 3 м в зависимости от проекта. |
| Стропильная система: | Нестроганая доска 40×150 мм (камерной сушки), шаг 590 мм. |
| Ветро-влагозащита: | Мембрана «Ондутис А-120 Смарт». |
| Контробрешётка: | Брусок 40×50 мм (камерной сушки). |
| Обрешётка: | Обрезная доска 20×100 мм (камерной сушки). |
| Свесы крыши (карнизы, поднебесники): | Обшиваются строганой доской 20×120 мм (камерной сушки). Ширина свесов 500–600 мм. |
| Кровельное покрытие: | Металлочерепица «Монтеррей», толщина 0.45 мм, с доборными элементами, саморезами, капельниками, планками и коньками. Цвет по выбору заказчика. |
| Окна, двери | |
| Окна: | Окна ПВХ с двухкамерным стеклопакетом, цвет: белый. Количество и размеры по проекту. Монтаж с монтажной пеной и защитными лентами. Откосы не входят в стоимость. |
| Двери межкомнатные: | Не устанавливаются. |
| Входная дверь: | Металлическая утеплённая, порошковое покрытие, с одной стороны МДФ-панель. Цвет по согласованию. Замки и фурнитура включены. |
| Внутренняя отделка | |
| Стены и перегородки: | Отделка имитацией бруса сечением 16×140 мм (камерной сушки), строганая, шлифованная. |
| Потолки: | Обшивка имитацией бруса сечением 16×140 мм, строганая. |
| Полы: | Чистовой пол из шпунтованной доски 36×140 мм (камерной сушки). |
| Утепление стен: | Минеральная вата 150 мм в каркас внешних стен. Пароизоляция изнутри. |
| Утепление потолков: | Минеральная вата 200 мм. Пароизоляция, мембрана. |
| Утепление пола: | Минеральная вата 150 мм между лаг. Снизу мембрана, сверху пароизоляция. |
| Пароизоляция: | Мембрана «Ондутис R70» или аналог. |
| Электрика: | Проводка скрытая, по проекту. Включает розетки, выключатели, автоматический щиток. Светильники не входят в комплект. |
| Антисептирование: | Все деревянные элементы обработаны составом «Neomid 430 Eco». |
| Крепеж и материалы: | Гвозди, саморезы, уголки, пластины, ленты, мембраны, пленки, монтажная пена и прочее — включены. |
| Балкон | |
| Балкон: | Если балкон предусмотрен проектом, выполняется ограждение высотой 1 м из строганой доски 20×120 мм и стоек 40×100 мм. Пол балкона — шпунтованная доска 36×140 мм. Потолок — строганая доска 20×120 мм. |
| Лестница | |
| Лестница: | Лестница из сосны камерной сушки, с перилами и балясинами. Ступени — шпунтованная доска 36×140 мм. Лестница грунтуется и окрашивается. |
| Доставка и сборка дома | |
| Доставка: | Бесплатно в радиусе 500 км от производственной базы в г. Пестово Новгородской области. Свыше — 95 руб./км за машину. Подробный расчёт доставки — здесь. |
| Сборка: | Включена в стоимость. Все работы выполняются на участке заказчика. Включает монтаж, расходные материалы, антисептирование. |
Дополнительные работы и услуги
| Фундамент | |
| Фундамент: | Фундамент в базовую комплектацию не входит и рассчитывается отдельно. На выбор заказчика: свайно-винтовой, ленточный, монолитная плита, фундамент на забивных железобетонных сваях. |
| Гидроизоляция основания: | «Технониколь» |
| Основание дома | |
| Обвязка основания: | Выполнена из нестроганого бруса сечением 100х150 мм (камерной сушки). |
| Нижняя платформа основания и лаги пола 1-го этажа: | На обвязку основания монтируется нижняя платформа дома, выполненная из нестроганой доски сечением 40х150 мм (камерной сушки). В платформу устанавливаются лаги пола первого этажа из доски сечением 40х150 мм (камерной сушки), с шагом укладки 590 мм. С нижней части лаг пола прибивается доска, сечением 40х100 мм (камерной сушки). На него закладывается черновой пол. |
| Черновой пол: | Нестроганая доска сечением 20х100 мм (камерной сушки). |
| Антисептирование: | Нижняя обвязка основания, черновые полы и лаги пола, пропитываются антисептическим составом «ХМ-11». |
| Цокольные отливы: | Установка металлических отливов, по периметру фундамента. Цвет на выбор заказчика. |
| Силовой каркас первого и 1,5-го этажа | |
| Силовой каркас внешних стен 1-го и 1,5-го этажа, утепление в 150 мм: | Стойки, пояса, верхняя обвязка стен выполняются из нестроганой доски сечением 40х150 мм (камерной сушки), с шагом 590 мм. Укосины выполняются из нестроганой доски сечением 40х150 мм (камерной сушки). Каркас стен утепляется каменной ватой «ROCKWOOL ЛАЙТ БАТТС СКАНДИК» в 150 мм. Снаружи дома монтируется ветрозащитная мембрана «Ондутис Смар-АМ», далее через контррейку - строганая доска сечением 20х45 мм (камерной сушки), стены обшиваются имитацией бруса сечением 17х140 мм (камерной сушки). Внутри дома монтируется паро-изоляция «Ондутис Смарт-Б». Стены обшиваются имитацией бруса сечением 13х120 мм (камерной сушки) через контррейку - строганая доска сечением 20х45 мм (камерной сушки). |
| Силовой каркас внутренних перегородок стен 1-го и 1,5-го этажа, утепление в 100 мм: | Перегородки выполняются из нестроганой доски сечением 40х100 мм (камерной сушки), с шагом 590 мм. Перегородки утепляются каменной ватой «ROСKWOOL ЛАЙТ БАТТС СКАНДИК» в 100 мм. С двух сторон прокладывается паро-изоляция «Ондутис Смарт-Б», далее через контррейку - строганая доска сечением 20х45 мм (камерной сушки). Перегородки с двух сторон обшиваются имитацией бруса сечением 13х120 мм (камерной сушки). |
| Высота 1-го этажа: | Высота от лаг пола до потолочных балок: 2,6 м (+- 5 см). |
| Высота 1,5-го этажа: | Высота от лаг пола до потолочных балок 1,5-го этажа: 2,4 м (+- 5 см). Высота аттиковой стены (до скоса кровли): 1,5 м (+- 5 см). |
| Полы и потолки первого этажа | |
| Полы 1-го этажа, утепление в 200 мм: | На черновой пол монтируется ветрозащитная мембрана «Ондутис Смарт-АМ». Пол утепляется каменной ватой «ROСKWOOL ЛАЙТ БАТТС СКАНДИК» в 150 мм, монтируется паро-изоляция «Ондутис Смар-Б». Для устройства чистого пола применяется нестроганая доска сечением 20х100 мм (камерной сушки) с шагом укладки 100 мм. На доску 20х100 мм монтируются шпунтованные плиты ДСП QuickDeck Professional толщиной 16 мм. |
| Потолочные балки 1-го этажа (межэтажное перекрытие): | Нестроганая доска сечением 40х150 мм (камерной сушки), с шагом укладки 590 мм. |
| Потолок 1-го этажа, утепление в 150 мм: | По потолочным балкам монтируется паро-изоляция «Ондутис Смарт-Б». Потолок подшивается имитацией бруса сечением 13х120 мм (камерной сушки) через контр-рейку — строганая доска сечением 20х45 мм (камерной сушки), утепляется каменной ватой «ROСKWOOL ЛАЙТ БАТТС СКАНДИК» в 150 мм. |
| Полуторный этаж | |
| Полы 1,5-го этажа: | Для устройства чистого пола на 1,5-м этаже применяется нестроганая доска сечением 20х100 мм (камерной сушки) с шагом укладки 100 мм. На доску 20х100 мм монтируются шпунтованные плиты ДСП QuickDeck Professional толщиной 16 мм. |
| Потолок 1,5-го этажа, утепление в 150 мм: | По потолочным балкам монтируется паро-изоляция «Ондутис Смарт-Б». Потолок подшивается имитацией бруса сечением 13х120 мм (камерной сушки), через контр-рейку — строганая доска сечением 20х45 мм (камерной сушки), утепляется каменной ватой «ROСKWOOL ЛАЙТ БАТТС СКАНДИК» в 150 мм. |
| Кровля | |
| Крыша: | Согласно проекту дома (двухскатная, ассиметричная). Высота конька кровли согласно проекту дома (1.7 м, 2.5 м, 3 м). |
| Стропильная конструкция: | Нестроганая доска сечением 40х150 мм (камерной сушки), с шагом укладки 590 мм. Утепление 150 мм. Ветро-влагозащитная мембрана Ондутис А-120 Смарт. Контробрешетка из нестроганого бруска сечением 40х50 мм (камерной сушки). Обрешетка из обрезной доски 20х100 мм (камерной сушки). |
| Поднебесники, карнизы (свесы крыши): | Поднебесники, карнизы, лобовые доски. Обшиваются строганой доской сечением 20х120 мм (камерной сушки). Ширина свесов крыши: 500–600 мм. |
| Фронтоны: | На каркас фронтонов монтируется ветрозащитная мембрана «Ондутис Смарт-А», далее через контррейку — строганая доска сечением 20х45 мм (камерной сушки), фронтоны обшиваются имитацией бруса сечением 17х140 мм (камерной сушки). Устанавливаются вентиляционные решётки. В фронтоне — дверь в чердачное помещение (0,7 × 0,9 м). |
| Кровельное покрытие: | Металлочерепица профиль «Монтеррей», толщина стали 0.45 мм, цвет на выбор заказчика. Включает доборные элементы, саморезы, капельники, карнизные планки, коньки. |
| Окна, двери | |
| Окна: | Двухкамерные стеклопакеты в пластиковых оконных блоках. Цвет: белый. Количество окон и размеры – согласно проекту дома. Оконные блоки устанавливаются на монтажные анкера, по периметру прокладывается монтажная лента (ПСУЛ), щели запениваются. В стоимость входит установка окон, без откосов. |
| Межкомнатные двери: | Обычные двери из массива (сосна), с доборами и наличниками. Количество – согласно планировке дома. |
| Входная дверь: | Металлическая утеплённая дверь, с замками. Цвет: коричневый, антик или другой (по наличию). |
| Внутренняя отделка | |
| Стены: | Изнутри помещения монтируется пароизоляционная мембрана Ондутис Смарт-Б. Поверх неё — строганая доска (имитация бруса) сечением 13×120 мм (камерной сушки). В санузлах и технических помещениях возможна установка влагостойкой фанеры или плит ОСБ — по согласованию. |
| Потолок: | Нижняя часть перекрытий перекрывается мембраной Ондутис Смарт-Б, затем монтируется имитация бруса (13×120 мм, камерной сушки). |
| Пол: | На черновой пол укладывается ОСБ-3 18 мм. Поверх ОСБ — подложка Tuplex и покрытие Tarkett с плинтусами. |
| Утепление: | Полы, стены и потолки утепляются плитами Rockwool/Технониколь толщиной 150 мм (3 слоя по 50 мм). Все внутренние перегородки утепляются в 50 мм для шумоизоляции. |
| Чистовая отделка: | Внутри все помещения отделаны имитацией бруса, включая потолок. Все стыки закрыты декоративными рейками. Установлены плинтуса, доборы, наличники. |
| Антисептирование: | Все деревянные элементы (черновые и отделочные) обработаны антисептическим составом Neomid-430 Eco. |
| Балкон | |
| Балкон: | Если балкон предусмотрен проектом, то он выполняется из бруса и доски камерной сушки. Опорные элементы — клеёный брус 120×120 мм, перила — строганая доска. Настил пола из строганой доски камерной сушки 35×120 мм. Потолок балкона подшивается строганой доской 20×120 мм. |
| Терраса | |
| Терраса: | Если терраса предусмотрена проектом, то устанавливаются опорные столбы из клеёного бруса 120×120 мм. Потолок подшивается строганой доской 20×120 мм (камерной сушки) с шагом 5–8 мм. |
| Доставка и сборка дома | |
| Доставка: | В радиусе 500 км от производственной базы (г. Пестово, Новгородская обл.) доставка бесплатна. Свыше — 95 руб/км за одну машину. Онлайн расчёт доставки. Точную стоимость уточнять у менеджеров. География: от Мурманска до Сочи. |
| Сборка: | Материалы и сборка на участке заказчика включены в стоимость. |
| Лестница | |
| Лестница на полуторный этаж: | Деревянная маршевo-поворотная лестница из хвойных пород дерева (сосна, камерной сушки), с перилами и балясинами. Ступени – толщина 40 мм, ширина и высота рассчитываются согласно проекту. Возможна тонировка по согласованию с заказчиком. |
| Доставка и сборка дома | |
| Доставка: | Комплект дома доставляется бесплатно в радиусе до 500 км от производственной базы в г. Пестово. При расстоянии более 500 км – стоимость доставки составляет 95 руб/км за одну машину. Подробности и онлайн-калькулятор доступны по ссылке: Расчёт доставки. Уточняйте точную стоимость у менеджеров. |
| Сборка: | Сборка дома на участке заказчика включена в стоимость комплектации. Работы выполняются бригадой с опытом от 5 лет. |
Дополнительные работы и услуги
Что входит в стоимость?
материалы
ваш участок

Отзывы клиентов
Как заказать
Заказать строительство в компании «Русская построечка».
Если вам это необходимо


























