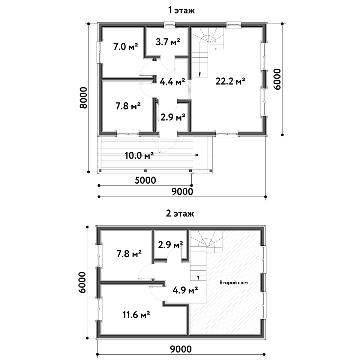
Артём Менеджер Артём Приветствую! СНТ «Омега», поселок Зеленая Роща, Полянское сельское поселение, Выборгский район, Ленинградская область. Каркасный дом 9,0×8,0 собран на свайно-винтовом фундаменте заказчика.
Силовой каркас внешних стен 40×150±5 мм камерной сушки с ветрозащитной плитой «Белтермо 20 мм» по периметру, наружная отделка — виниловый сайдинг DOCKE Premium блок-хаус крем-брюле. Внутри — имитация бруса 18×140 мм, в санузлах — ГКЛВ 12,5 мм в два слоя со смещением.
Утепление 150 мм каменной ватой «ROCKWOOL КАРКАС БАТТС», полы утеплены в 200 мм и закрыты шпунтованными плитами ДСП QuickDeck Professional 16 мм и ЦСП 10 мм в зонах влажности. Окна ПВХ белые, межкомнатные двери филенчатые из массива, входная дверь металлическая 2,0×0,9 м.
Кровля металлочерепица «Шоколад», водосточная система ПВХ и отливы в цвет кровли, фасадные панели «Альта Профиль Фагот ЭКО» — коричневые, а нестроганные пиломатериалы защищены ХМ-11 на заводе. Установлены приточный клапан КИВ-125, грызуноопасная сетка под черновыми полами и заводская покраска террасных ограждений цветом RAL 7024.





